Byt 1. NP - 3+1 - PRODÁNO
Bytový dům Studentská 392, Poděbrady II
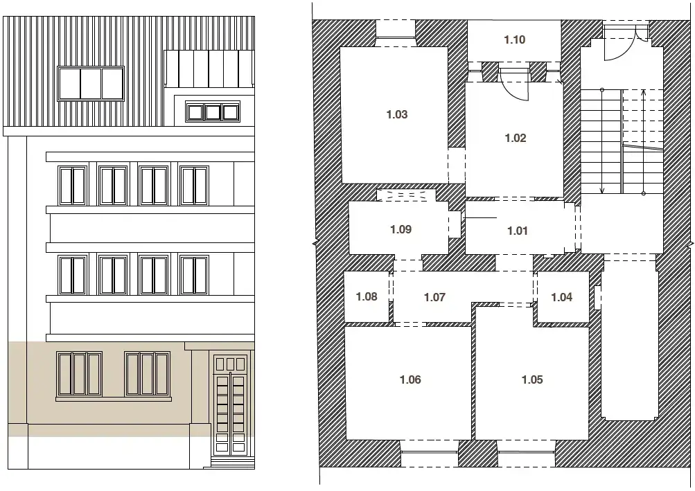
| Číslo místnosti | Název místnosti | Plocha (m²) |
|---|---|---|
| 1.01 | Předsíň | 5,22 |
| 1.02 | Kuchyň | 10,03 |
| 1.03 | Obývací pokoj | 12,55 |
| 1.04 | Technická místnost | 2,25 |
| 1.05 | Pokoj | 11,77 |
| 1.06 | Ložnice | 12,02 |
| 1.07 | Chodba | 5,55 |
| 1.08 | Toaleta | 1,94 |
| 1.09 | Koupelna | 5,3 |
| 1.10 | Balkón | 3,46 |
| Světlá výška obytných místností | 2,80 m | |
| Celková plocha | 70,16 | |
| Celková plocha pro prohlášení vlastníka činí: 87,77 m² | ||
Informace a půdorys
Váš byt vás přivítá světlem, prostorem a elegancí, kde se citlivá rekonstrukce proměnila v nadčasový domov. Jen pár kroků odtud na vás čeká samotné srdce Poděbrad – lázeňské město s jedinečnou atmosférou klidu a noblesy.
| Dispozice | Celková plocha | Zahrada | Parkovací stání | Balkón | Cena |
|---|---|---|---|---|---|
| 3+1 | 87,77 m² | Ano, samostatná | Ne | Ano | Prodáno |
| Dispozice | 3+1 |
| Celková plocha | 87,77 m² |
| Zahrada | Ano, samostatná |
| Parkovací stání | Ne |
| Balkón | Ano |
| Cena | 8 990 000 Kč |
Lokalita v srdci Poděbrad
Poděbrady, kouzelné město plné historie a klidu, je ideálním místem pro život, kde se každodenní stres rozpustí v harmonii s přírodou. Elegantní kolonáda, malebný park a lázeňské prostředí vás okouzlí svou atmosférou, zatímco veškerá občanská vybavenost je na dosah. Město nabízí unikátní spojení pohody maloměsta s výbornou dostupností do Prahy díky vlakovému a autobusovému nádraží a blízké dálnici D11.
Naše byty, jen pár kroků od kolonády, vám přinesou to nejlepší z obou světů – klidný život s pohodlím moderního bydlení. Poděbrady jsou místem, kde si můžete vychutnávat každý okamžik a žít ve spojení s přírodou a komfortem.
Kontakt
Máte zájem o nové bydlení nebo investiční příležitost?
Kontaktujte nás ještě dnes! Napište nám přes formulář nebo přímo na e-mail. Rádi Vám poskytneme více informací.
-
Napište nám
info@reflips.cz -
Real Estate EliteAcademy I s.r.o.
Zvěřinova 3429/7
130 00 Praha 3 - Strašnice -
Firemní údaje
IČ: 21844003
Spis.zn.C 407345 u MS v Praze
Zanechte nám váš kontakt
Rádi vám poskytneme bližší informace…
Vaše osobní údaje budou zpracovány pouze pro vyřízení vaší poptávky, dle našich Zásad zpracování osobních údajů.